De site Rapid Bertem ligt in het hart van Bertem, opgespannen tussen de drukke handels- en verkeersader van de Tervuursesteenweg, en de erg rustige en kleinschalige Sint-Medardusstraat. Tussen beide straten is er een hoogteverschil van bijna 7m. Het is een site met enorme potentie voor het levendige centrum van Bertem.
Vanuit de potenties van de site volgen de krachtlijnen en uitgangspunten van het masterplan : het woonproject als woongaard rond publieke groene ruimte.
Het masterplan voorziet bebouwing langs de Tervuursesteenweg zodat het achtergelegen binnengebied afgeschermd wordt van het geluid en de drukte van de steenweg. Daarnaast zorgt de bebouwing voor actieve gevels aan de straat. De gevelwand opent zich voor een aangename en vanzelfsprekende fietsers- en voetgangersdoorgang tussen de Tervuursesteenweg en de Sint-Medardusstraat. Deze parkweg verbreedt in een rustig, publiek parkje waar het aangenaam verpozen is.
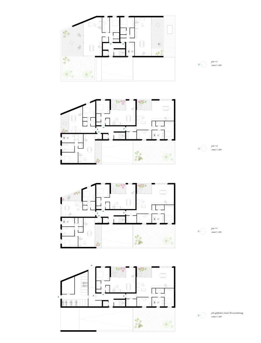
Het project voor de Woongaard voorziet een grote mix van woontypologieën. Op die manier wordt een zo breed mogelijk publiek aangesproken. Er worden 4 gebouwgehelen onderscheiden. De vier gehelen verschillen qua vormgeving licht van elkaar, maar spreken wel dezelfde architecturale taal.
De nieuwe bebouwing sluit aan op de bestaande morfologie van het weefsel. De parkappartementen passen in de grotere korrel langs de Tervuursesteenweg, terwijl de gestapelde woningen aansluiten bij de fijnmazige structuur van de Frans Dottermansstraat. Aan de zuidkant van de site opent het binnengebied zich, en vermindert de bebouwing, zodat morfologisch aansluiting gezocht wordt met de pastorie met tuin en tuinmuur.
Human context
De mix van woontypologieën maakt het mogelijk om een gevarieerd publiek aan te spreken.
Veel aandacht gaat naar de woonkwaliteit.
Elke woning heeft naast een private buitenruimte, maar kan ook gebruik maken van het park.
Interaction
Het boomgaard bevordert ontmoeting tussen bewoners, maar het park is eveneens uitnodigend voor de buurt.
Open-ended
De woningen hebben een grote graad van flexibiliteit zodat bewoners hun woning naar hun hand kunnen zetten, in elke fase van hun leven.