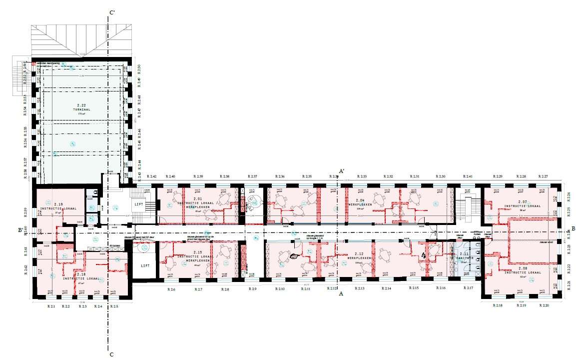
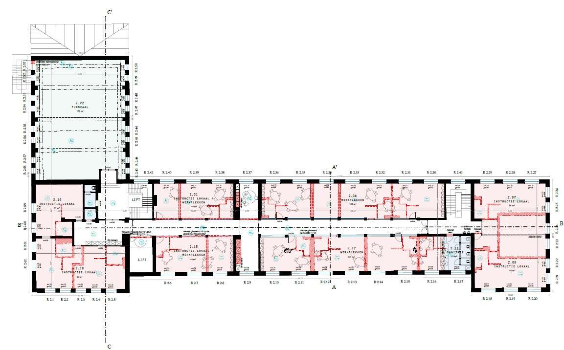
PTA werd aangesteld voor de volledige architectuuropdracht van de school de METen KIEM in Leuven. Het project omvat de renovatie van het kloostergebouw op de Scheutsite gelegen in een bebost parkgebied op één van de getuigenheuveld.
De verbouwingswerken beperken zich tot het bestaande volume en hebben als doel het pragmatisch organiseren van het schoolprogramma van de MET en KieM. Hierbij wordt voorrang gegeven aan energiebesparende maatregelen en de ingrepen die noodzakelijk zijn voor het goed functioneren van het schoolgebeuren en de veiligheid en het comfort van de leerlingen en het personeel.
Daarnaast wordt ook de buitenomgeving aangepakt want voor elke school is een aparte speelplaats nodig. Deze worden aan beide zijden van het gebouw voorzien. Bij de inrichting van deze speelplaatsen wordt de buitenruimte maximaal onthard.
Human context
. innovatieve leeromgeving
. aangename werkomgeving
Interaction
. gedeeld ruimtegebruik
Open-ended
. slim hergebruik van rigide gebouw
. energie renovatie
. open leerruimtes